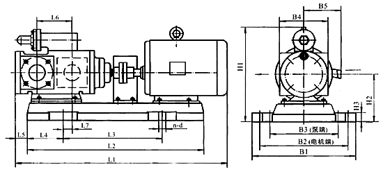
3G42×4外形及安装尺寸:

| 泵型号 |
机座号 |
L1 | L2 | L3 | L4 | L5 | L6 | L7 | B1 | B2 | B3 | B4 | B5 | H1 | H2 | H3 | n-d |
| 42×4 | 112M 132S 160M |
840 917 1043 |
725 765 890 |
420 460 590 |
150 150 150 |
41 41 41 |
158 158 158 |
50 50 50 |
410 450 480 |
350 390 420 |
270 270 270 |
176 176 176 |
190 210 265 |
343 385 455 |
190 202 230 |
35 35 35 |
4-φ25 4-φ25 4-φ25 |

| 泵型号 | D1 | F1 | G1×G1 | n1-M1 | D2 | F2 | G2×G2 | n2-M2 |
| 42×4 | 65 | 130 | 128×128 | 4-M12 | φ40 | φ108 | 118×118 | 4-M16 |